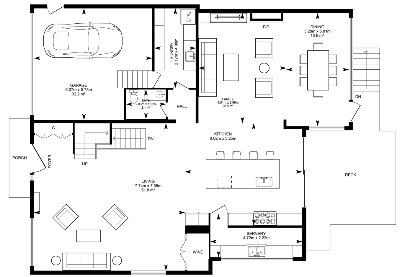
When original plans are missing or unreliable, we document your home as it exists today using LiDAR scanning. This allows us to create accurate as-built drawings that serve as the foundation for design, budgeting, permit applications and contractor pricing.

What we do

  • Scan your home with a LiDAR device to capture precise measurements.

  • Draft scaled, dimensioned floor plans showing the current layout.

  • Verify key dimensions and review the drawings for accuracy.

  • Review the as-built plans with you before moving into design.

What you receive

  • Scaled as-built floor plans (PDF and/or CAD).

  • Room dimensions and key overall measurements.

  • Door and window locations and basic opening sizes.

  • Area calculations for budgeting and contractor bids.

Why it matters

  • Reduces surprises by clearly documenting existing conditions.

  • Provides a reliable base for renovation and expansion drawings.

  • Improves budget accuracy and contractor pricing.

  • Supports smoother and faster permit approvals.

Important notes

  • LiDAR captures visible and accessible areas only; concealed elements inside walls are not visible.

  • Structural modifications may require additional verification or engineering.

LiDAR Measure Capture & As-Built Plans

Black and white architectural blueprint of a house, showing various rooms such as garage, pool, sauna, utility room, living room, kids room, bathroom, and bedroom.