Designs & Drawings

Our Designs & Drawings service transforms verified as-built documentation into clear, actionable design and construction documents. We deliver everything from early schematic concepts through permit-ready construction drawings so the scope of work is fully defined, coordinated and enforceable by contractors and authorities.

Process (step-by-step)

  • Schematic Design

  • Develop 1–3 concept options based on your goals, site constraints and the as-built model.

  • Present plan layouts, analysis, and simple visual references so you can compare approaches.

  • Capture client feedback and establish a preferred direction.

Design Development

  • Refine the chosen concept into coordinated floor plans, elevations and basic sections.

  • Define materials, finishes and key assemblies at a level sufficient for preliminary costing.

  • Coordinate any required engineering inputs (structural, geotech, MEP) and identify potential permit issues early.

Construction Documents (Permit-Ready)

  • Produce fully dimensioned, scaled construction drawings: floor plans, elevations, sections, wall/roof/ceiling details, door/window schedules, and reflected ceiling plans where required.

  • Include general notes, material specifications, assemblies, and site details necessary for permit submission and contractor execution.

  • Prepare a clear specification outline that describes finishes, fixtures and work quality expectations.

Bid & Tender Package

  • Compile drawings and a written scope into a standardized bid package so contractors price the same work (drawings + specifications + quantity lists/area schedules).

  • Provide annotated construction drawings and addenda support during the tender process as questions arise.

Coordination & Issue Resolution

  • Coordinate drawings with consultants (engineers, landscape, energy specialists) and consolidate revisions.

  • Review contractor shop drawings and RFIs during construction for conformance with design intent.

Typical Deliverables

  • Schematic layouts and option studies.

  • Dimensioned floor plans, elevations and sections.

  • Detail drawings (wall/roof/junctions, stair details, cabinetry/ millwork where applicable).

  • Door and window schedules; finish schedules.

  • Material/technical specifications (permit and construction level).

  • Permit submission set (PDF).

  • Bid package and tender addenda documentation.

Client Collaboration & Reviews

  • We build review milestones into each phase so you review drawings at schematic, design development and final construction document stages.

  • We document decisions and incorporate revisions so scope and budget remain aligned.

Why this matters

  • Clear, coordinated drawings minimize ambiguity, reduce change orders and create a fair basis for contractor pricing.

  • Permit-ready documentation speeds regulatory approvals and reduces back-and-forth with authorities.

  • Well-prepared drawings protect your budget and schedule by minimizing on-site interpretation and unknowns.

Line drawing of a modern kitchen with cabinets, a central island, and hanging pendant lights.
Side-by-side comparison of a drawn black and white outline of a built-in bookshelf and a real bookshelf filled with decor and books in a living room.
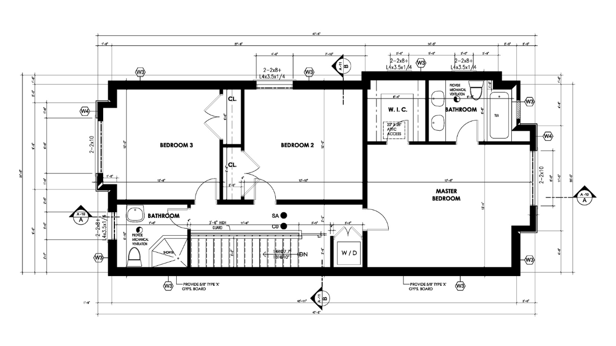
Architectural floor plan of a house showing three bedrooms, two bathrooms, a walk-in closet, and a laundry area, with detailed measurements and annotations.
Architectural blueprint showing detailed measurements and layout for a section of a building including a sink and a dishwasher.
Architectural blueprints and sketches with rulers and a pen on a workspace